in progress – renders + plans

HARMONY HALL

Old Ancaster

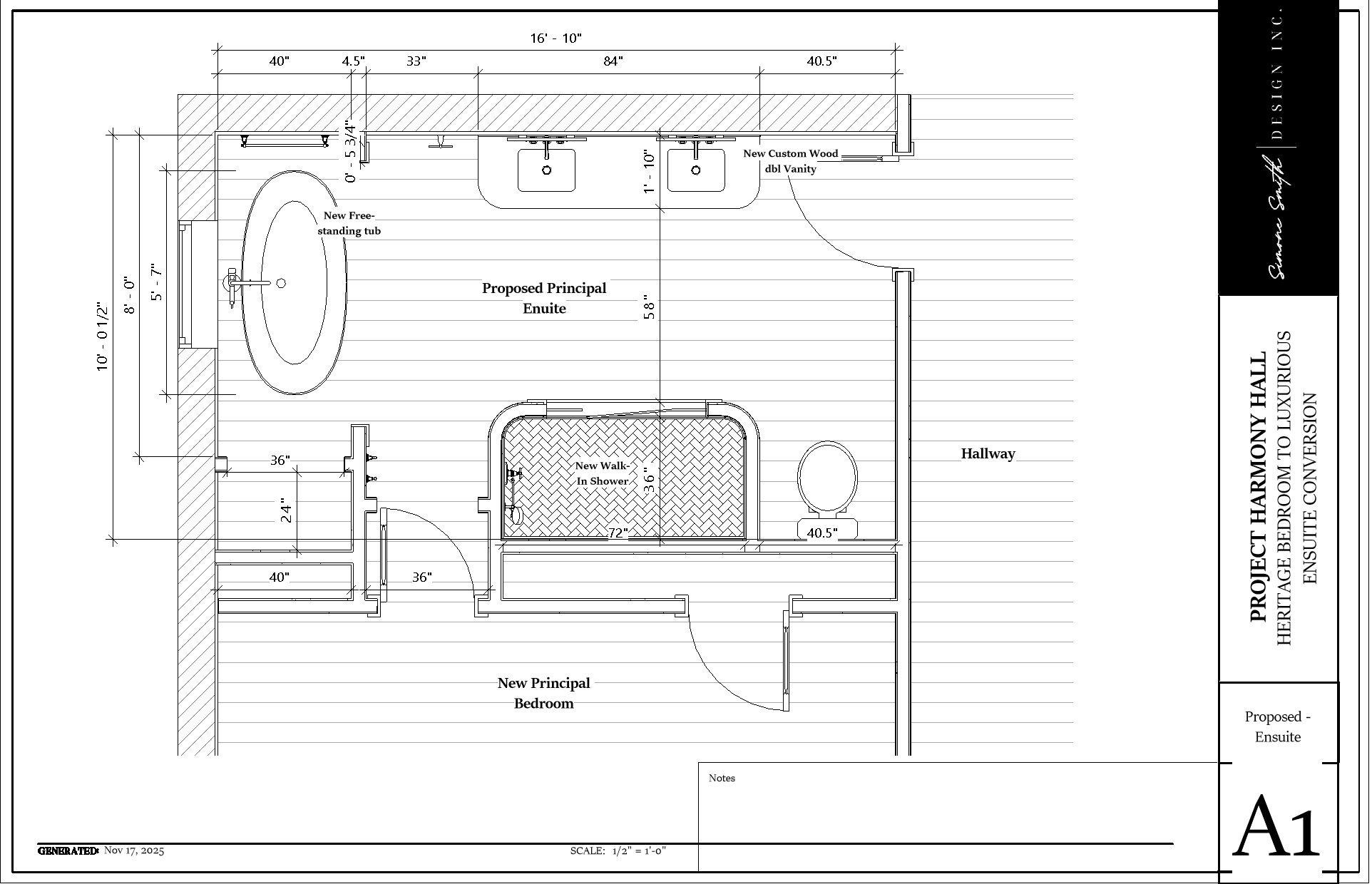
Project Harmony Hall is a rare early 19th-century residence — a Georgian brick home dating back to 1816 — where every line and proportion tells the story of Ontario’s architectural beginnings. Our clients have trusted us to bring modern comfort to its upper floor while keeping the grace and rhythm of the original structure intact.

The scope includes converting an existing bedroom into a timeless ensuite, using materials and detailing that quietly echo the home’s heritage — from trim profiles and door casings to fixture selections that feel authentic rather than new. With Simone’s design restraint and Phil’s precision in craftsmanship, Harmony Hill is a study in preservation through thoughtful intervention — restoring beauty, balance, and the sense of permanence that only a home of this era can hold.

Previous
Previous

Westdale

Next
Next

In Progress – Project Old Oakville