Bayfront

Downtown, Hamilton

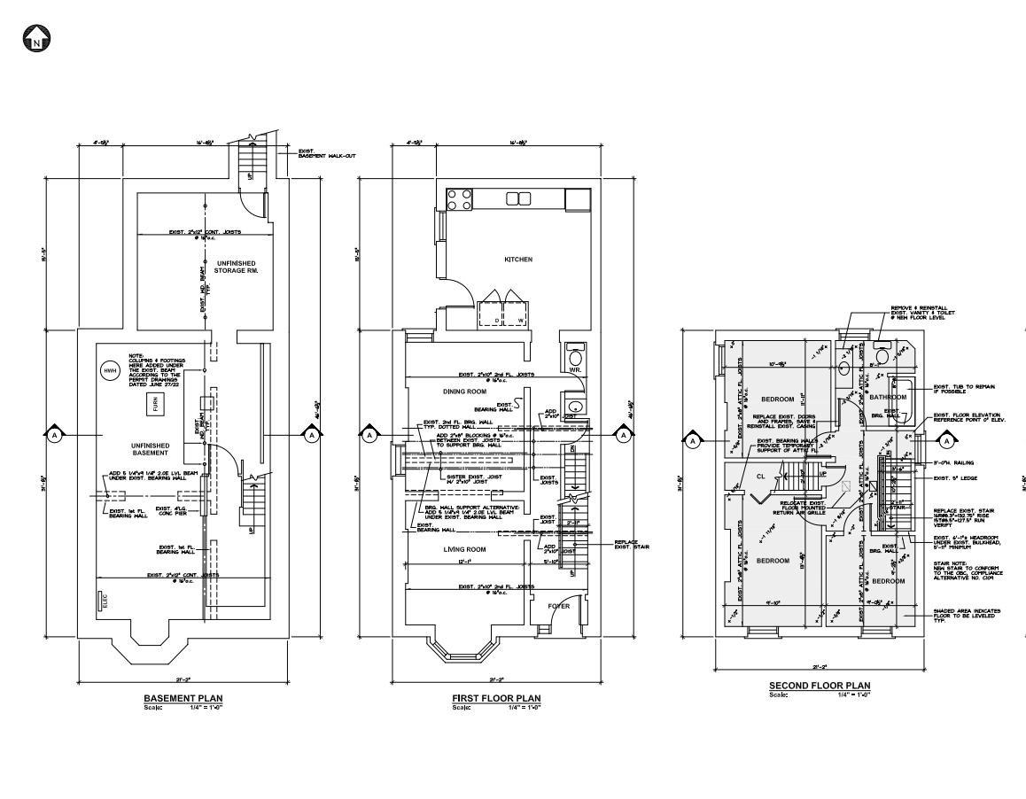
Tucked near Hamilton’s waterfront, Project Bayfront is a full re-leveling and interior revival of an 1880s Victorian with all its original charm intact — and a few structural stories to tell. Our team is carefully bringing the first and second floors back to level, addressing decades of natural settling while preserving the home’s historic integrity.

The renovation scope includes a new second-floor bathroom designed to feel true to the period yet functional for modern living, a first-floor powder room, and solid hardwood flooring throughout to restore continuity and warmth underfoot. The staircase remodel will act as the visual centerpiece — marrying traditional proportions with contemporary craftsmanship.

Every decision on Bayfront balances correction and character: we’re straightening floors and realigning structure, but also celebrating the imperfections that make a Victorian feel lived in and loved.

BOOK YOUR DISCOVERY CALL →
Previous
Previous

Beaches

Next
Next

Coming Soon...Project Ainslie Wood